Skip to content
Home
Services
Real Estate Agencies
Start a Floor Plan Business
Property Photographers
Copywriters
Resources
FAQs
Our Blog
Floor Plan Training
About Us
Contact Us
Home
Services
Real Estate Agencies
Start a Floor Plan Business
Property Photographers
Copywriters
Resources
FAQs
Our Blog
Floor Plan Training
About Us
Contact Us
Order a floor plan
Home
Services
Real Estate Agencies
Start a Floor Plan Business
Property Photographers
Copywriters
Resources
FAQs
Our Blog
Floor Plan Training
About Us
Contact Us
Home
Services
Real Estate Agencies
Start a Floor Plan Business
Property Photographers
Copywriters
Resources
FAQs
Our Blog
Floor Plan Training
About Us
Contact Us
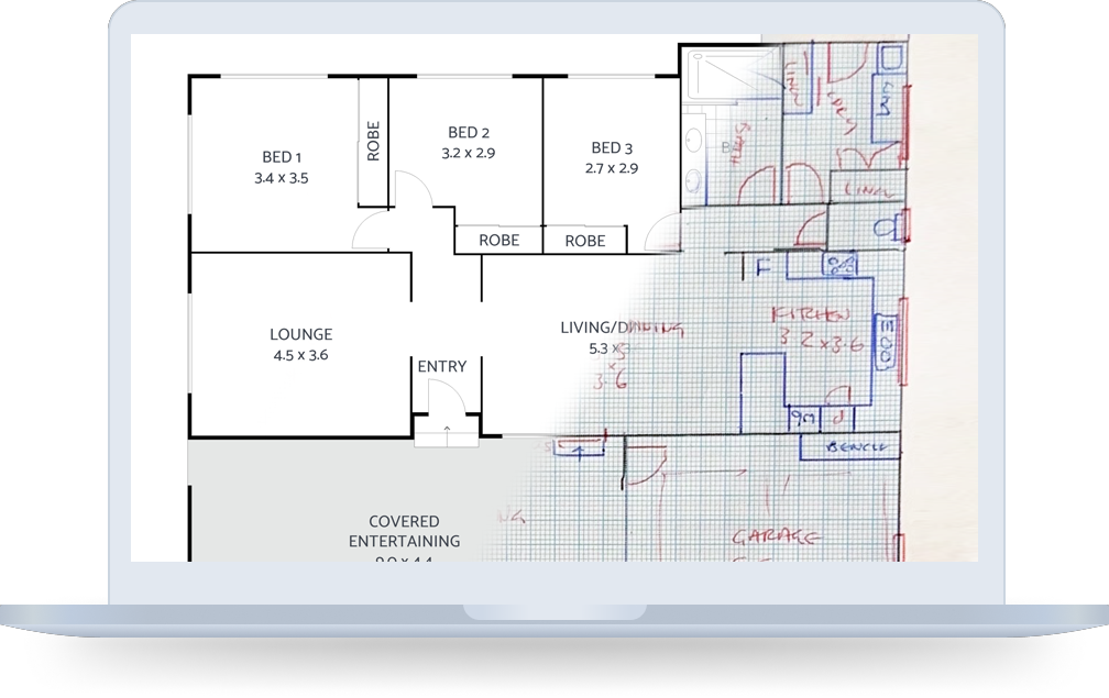
Floor Plan Business
Marketing Floor Plans for Real Estate
get in touch
0402768828
info@realestatefloorplans.com.au
1/ Services
2/ Start a Floor Plan Business
3/ Real Estate Agencies
Follow Us
Facebook
Twitter
Youtube
Linkedin